Appartement neuf 4 pièces - 144m² Saint Andre (97440)

  • 4 pièces
  • 3 chambres
  • 1 salle de bain

1500.00€ par mois charges comprises

N’hésitez pas à partager ! 

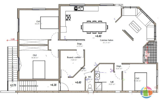
Klébert du réseau Tekaimmo propose à la location un superbe appartement neuf de 144m2 situé au dessus d'un local professionnel, occupant tout le premier étage d'un bâtiment R+1, proximité du centre-ville de Saint-André. Elle se compose d'un séjour et d'une cuisine ouverte de 61m2. Avec 3 chambres, une salle de bain avec douche italienne, et une buanderie/sellier de 7,84m2. avec une balcon vue sur l'avenue. Tous le commodité sont a proximité, école, collège, docteur, pharmacie, etc.. Ce bien sera disponible le 1er janvier 2026, elle est en phrase de finition les photos sont non contractuelle. \nRéf mandat: 6595 Montant HC du loyer mensuel: 1464,00 €. Montant taxe d'enlèvement des ordures ménagères mensualisés : 36 € (soumis à régularisation annuelle) Soit un montant total loyer mensuel de 1500.00 € par mois Honoraires à la charge du locataire : 1464.00€, soit 11€/ m² plafonné à 1 mois de loyer dont 255 € pour l'état des lieux d'entrée (soit 3€/ m²) Dépôt de garantie : 1464.00 €, soit un mois de loyer hors charge. Pour tout renseignement ou une visite, contacter M. Seusse Klébert EI agent mandataire indépendant du réseau Teka Immo au 0693 490 901, ou par mail à : klebert@tekaimmo.fr. Inscrit au RSAC de St Denis sous le numéro :510883903 . Barème visible sur le site de l'agence TEKA IMMO ou http://www.tekaimmo.fr/pdf/honoraires.pdf. Sous la responsabilité éditoriale de l'agent. Les informations sur les risques auxquels ce bien est exposé sont disponibles sur le site Géorisques : www.georisques.gouv.f

Référence : 6595

En général

  • Surface : 144m²
  • 4 pièces
  • 3 chambres
  • 1 salle de bain
  • Meublé

À PROPOS DU PRIX

  • Charges : 0.00 €
  • Honoraires TTC : 0.00 €
  • Dépôt de garantie : 0.00 €
  • Honoraires TTC pour états des lieux : 0.00 €

L'agence

TEKA IMMO
8 rue Issop Ravate
97400 SAINT-DENIS

Contacter

02 62 41 88 88

faq

Être recontacté Étape 1 : Présentez-nous votre bien

(optionnel)

Voici nos agences les plus proches de votre bien Locagestion vous proposera les agences les plus adaptés à votre besoin

C'est presque terminé !
Pour être rappelé, merci de nous indiquer...

Exemple :+33 6 05 04 03 02