T2 2 pièces - 45m² Agde (34300)

  • 2 pièces
  • 1 chambre
  • Meublé

574.00€ par mois charges comprises

N’hésitez pas à partager ! 

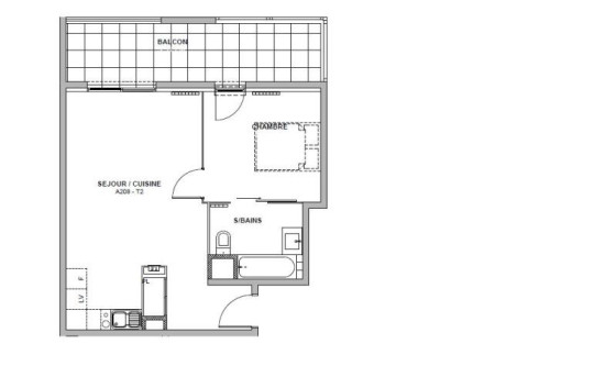
A208 LES TERRASSES DE SOLENE - BEAU T2 EXPO OUEST DE 45M2 AU 2EME ETAGE AVEC TERRASSE DE 12 M2 DANS UNE RESIDENCE RECENTE BBC DE STANDING A PROXIMITE DES COMMERCES - Sup. séjour et cuisine US équipée et aménagée (meubles hauts et bas + plaques, four et hotte) de 29m2, une chambre en sol parquet, SDB aménagée, garage fermé en sous sol sécurisé. Consommation d'énergie totale 333 EUR par an (prix moyens des énergies indexés au 15.08.2015). Les informations sur les risques auxquels ce bien est exposé sont disponibles sur le site Géorisques : www. georisques. gouv. fr

Référence : 5942

En général

  • Surface : 45m²
  • 2 pièces
  • 1 chambre
  • Meublé
  • Etage : 2
  • Ascenseur : oui
  • Piscine : oui

À PROPOS DU PRIX

  • Charges : 45.00 €
  • Honoraires TTC : 499.40 €
  • Dépôt de garantie : 529.00 €
  • Honoraires TTC pour états des lieux : 136.20 €

LES DIAGNOSTICS ÉNERGÉTIQUES

  • DPE (diagnostic de performance énergétique) :  C (97)
  • GES (émission de gaz à effet de serre) :  A (3)

L'agence

CONFIANCE IMMOBILIER MONPLAISIR LOCATION
108, avenue des frères Lumière
69008 LYON

Contacter

04 72 78 89 87

faq

Être recontacté Étape 1 : Présentez-nous votre bien

(optionnel)

Voici nos agences les plus proches de votre bien Locagestion vous proposera les agences les plus adaptés à votre besoin

C'est presque terminé !
Pour être rappelé, merci de nous indiquer...

Exemple :+33 6 05 04 03 02