T2 2 pièces - 43m² Albertville (73200)

  • 2 pièces
  • 1 chambre
  • 1 salle de bain

715.00€ par mois charges comprises

N’hésitez pas à partager ! 

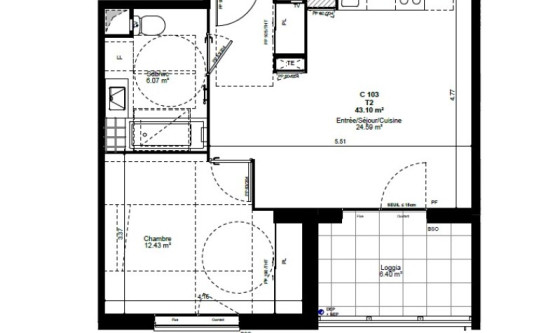
C103 OXYGENE - AU COEUR D'UNE RESIDENCE NEUVE DE STANDING A FAIBLE CONSOMMATION ENERGETIQUE BEAU T2 DE 43M² AVEC BALCON AVEC VUE DEGAGEE. Il est composé d'une pièce de vie, une cuisine US équipée (hotte, plaques vitro, four, meubles haut et bas), donnant accès au balcon, une chambre en sol parquet avec placards, une salle de bain aménagée avec meuble sous vasque et sèche serviette. Une place de parking en sous-sol. Chauffage individuel gaz. Visiophone. Consommation d'énergie totale entre 340-520EUR par an (prix moyens des énergies indexés au 2021.2022.2023). Les informations sur les risques auxquels ce bien est exposé sont disponibles sur le site Géorisques : www. georisques. gouv. fr

Référence : 10843

En général

  • Surface : 43m²
  • 2 pièces
  • 1 chambre
  • 1 salle de bain
  • Meublé
  • Etage : 1
  • Ascenseur : oui
  • Piscine : oui

À PROPOS DU PRIX

  • Charges : 75.00 €
  • Honoraires TTC : 474.10 €
  • Dépôt de garantie : 650.00 €
  • Honoraires TTC pour états des lieux : 129.30 €

LES DIAGNOSTICS ÉNERGÉTIQUES

  • DPE (diagnostic de performance énergétique) :  C (73)
  • GES (émission de gaz à effet de serre) :  C (13)

L'agence

CONFIANCE IMMOBILIER MONPLAISIR LOCATION
108, avenue des frères Lumière
69008 LYON

Contacter

04 72 78 89 87

faq

Être recontacté Étape 1 : Présentez-nous votre bien

(optionnel)

Voici nos agences les plus proches de votre bien Locagestion vous proposera les agences les plus adaptés à votre besoin

C'est presque terminé !
Pour être rappelé, merci de nous indiquer...

Exemple :+33 6 05 04 03 02