T2 2 pièces - 59m² Ensisheim (68190)

  • 2 pièces
  • 1 chambre
  • 1 salle d'eau

681.15€ par mois charges comprises

N’hésitez pas à partager ! 

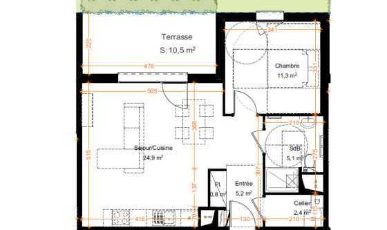
À louer à Ensisheim, dans la résidence Les rives du lac, plusieurs appartements T2 entre 50 et 60 m² avec balcon ou terrasse, situé dans un programme neuf adapté aux seniors autonomes (60 ans et +), calme et sécurisé, avec ascenseur. Les logements offrent une cuisine ouverte sur un séjour lumineux avec accès balcon, une chambre, une salle d'eau adaptée avec douche à bac extra-plat, siège et barres d'appui, ainsi que des WC surélevés. Les volets sont motorisés pour plus de confort au quotidien. La résidence dispose de stationnements extérieurs et de garages (en supplément du loyer) selon disponibilité, ainsi que d'une salle commune conviviale avec une animatrice présente 2 à 3 jours/semaine favorisant les échanges et la vie sociale. Loyers entre 500€ et 750€/ mois charges comprises (chauffage individuel gaz). Disponibles à partir du 1er juin 2026 Logement conventionné APL Pour effectuer une demande de logement social, merci de vous rendre sur le site suivant : https://www.demandedelogement-alsace.fr/imhowebGP67/ REF;5888024

Référence : 5888024-6533

En général

  • Surface : 59m²
  • 2 pièces
  • 1 chambre
  • 1 salle d'eau
  • 1 salle de bain
  • Etage : 3
  • Ascenseur : oui
  • Chauffage : Type : individuel

À PROPOS DU PRIX

  • Charges : 59.15 €
  • Honoraires TTC : 0.00 €
  • Dépôt de garantie : 0.00 €
  • Honoraires TTC pour états des lieux : 0.00 €

LES DIAGNOSTICS ÉNERGÉTIQUES

  • DPE (diagnostic de performance énergétique) :  C (62)
  • GES (émission de gaz à effet de serre) :  C (13)

L'agence

NEOLIA - Locatif
34 RUE COMBE AUX BICHES
25200 MONTBELIARD

Contacter

03 81 99 16 16

faq

Être recontacté Étape 1 : Présentez-nous votre bien

(optionnel)

Voici nos agences les plus proches de votre bien Locagestion vous proposera les agences les plus adaptés à votre besoin

C'est presque terminé !
Pour être rappelé, merci de nous indiquer...

Exemple :+33 6 05 04 03 02
Prendre RDV