T2 2 pièces - 49m² Tassin La Demi Lune (69160)
- 2 pièces
- 1 chambre
- 1 salle de bain
629.00€ par mois charges comprises
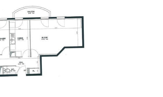
C25 PARC ARTHUR - SPACIEUX T2 DE PRES DE 50m², DANS une RESIDENCE securisée AVEC PISCINE ET ESPACES VERTS AU PIED DES TRANSPORTS EN COMMUN ET DES COMMERCES. Ce logement dispose d'un confortable séjour de près de 20m2 ouvrant sur un petit balcon interieur de résidence, une cuisine indépendante non aménagée et non équipée, une chambre avec placard de rangement, une salle de bain avec baignoire et vasque, WC séparés, placard à l'entrée. Eau froide comprise dans les charges, chauffage individuel électrique. CONSOMMATION TOTALE D'ENERGIE ESTIMEE ENTRE 760EUR et 1070EUR/AN (prix moyen des énergies indéxées sur les anneés 2021-2022-2023) Les informations sur les risques auxquels ce bien est exposé sont disponibles sur le site Géorisques : www. georisques. gouv. fr
Référence : 1664
En général
- Surface : 49m²
- 2 pièces
- 1 chambre
- 1 salle de bain
- Meublé
- Etage : 2
- Ascenseur : oui
- Piscine : oui
À PROPOS DU PRIX
- Charges : 68.00 €
- Honoraires TTC : 638.43 €
- Dépôt de garantie : 561.00 €
- Honoraires TTC pour états des lieux : 147.33 €
LES DIAGNOSTICS ÉNERGÉTIQUES
- DPE (diagnostic de performance énergétique) : D (186) Lorem ipsum dolor sit amet, consectetur adipisicing elit. Neque ipsa eius autem corporis quos quisquam nobis iure laudantium. Quae, ratione.
- GES (émission de gaz à effet de serre) : A (5) Lorem ipsum dolor sit amet, consectetur adipisicing elit. Neque ipsa eius autem corporis quos quisquam nobis iure laudantium. Quae, ratione.
L'agence
                                CONFIANCE IMMOBILIER MONPLAISIR LOCATION
                                108, avenue des frères Lumière
                                69008 LYON                            
Contacter
04 72 78 89 87
 
                                                
                                                
                                             
                                                
                                                
                                             
                                                
                                                
                                             
                                                
                                                
                                             
                                                
                                                
                                            