T3 3 pièces - 66m² Albertville (73200)
- 3 pièces
- 2 chambres
- 1 salle de bain
980.00€ par mois charges comprises
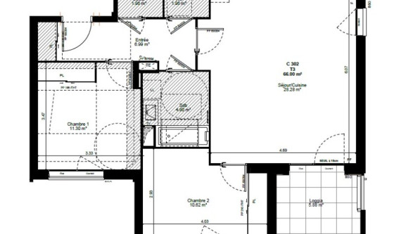
C302 OXYGENE - AU COEUR D'UNE RESIDENCE NEUVE DE STANDING A FAIBLE CONSOMMATION ENERGETIQUE MAGNIPHIQUE T3 DE 66M² AVEC BALCON. Il est composé d'une entée avec un grand placard, pièce de vie, une cuisine US (meubles haut et bas, hotte, plaque de cuisson et four) donnant sur le balcon, deux chambres en sol parquet avec placard, une salle de bain aménagée avec meuble sous vasque et sèche serviette. Deux places de parking en sous-sol. Chauffage individuel gaz. Visiophone. Les informations sur les risques auxquels ce bien est exposé sont disponibles sur le site Géorisques : www. georisques. gouv. fr
Référence : 10717
En général
- Surface : 66m²
- 3 pièces
- 2 chambres
- 1 salle de bain
- Meublé
- Etage : 3
- Ascenseur : oui
- Piscine : oui
À PROPOS DU PRIX
- Charges : 90.00 €
- Honoraires TTC : 726.00 €
- Dépôt de garantie : 790.00 €
- Honoraires TTC pour états des lieux : 198.00 €
LES DIAGNOSTICS ÉNERGÉTIQUES
- DPE (diagnostic de performance énergétique) : C (90) Lorem ipsum dolor sit amet, consectetur adipisicing elit. Neque ipsa eius autem corporis quos quisquam nobis iure laudantium. Quae, ratione.
- GES (émission de gaz à effet de serre) : C (17) Lorem ipsum dolor sit amet, consectetur adipisicing elit. Neque ipsa eius autem corporis quos quisquam nobis iure laudantium. Quae, ratione.
L'agence
                                CONFIANCE IMMOBILIER MONPLAISIR LOCATION
                                108, avenue des frères Lumière
                                69008 LYON                            
Contacter
04 72 78 89 87
 
                                                
                                                
                                            