T3 3 pièces - 59m² Chambery (73000)

  • 3 pièces
  • 2 chambres
  • Meublé

803.00€ par mois charges comprises

N’hésitez pas à partager ! 

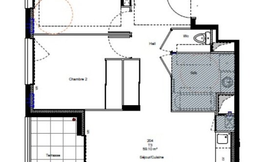
B204 LES PIERRES MARINES : SANS VIS-A-VIS DONNANT INTERIEUR DE RESIDENCE NEUVE BBC DE STANDING T3 comprenant une entrée avec rangement, une agréable pièce à vivre avec cuisine US équipée et meublée (plaques vitro, four, hotte, meubles hauts et bas) ouvrant sur une belle terrasse de près de 7m². 2 chambres en sol parquet dont une avec placard mural aménagé. Salle de bain avec meuble sous vasque et sèche-serviettes. Garage fermé en sous-sol sécurisé. CHAUFFAGE IND AU GAZ. VISIOPHONE. A PROXIMITE DU CENTRE VILLE ET DE LA GARE SNCF. Consommation d'énergie totale entre 406 et 550 euros par an (prix moyens des énergies indexés au 1er janvier 2021). Les informations sur les risques auxquels ce bien est exposé sont disponibles sur le site Géorisques : www. georisques. gouv. fr

Référence : 9465

En général

  • Surface : 59m²
  • 3 pièces
  • 2 chambres
  • Meublé
  • Etage : 2
  • Ascenseur : oui
  • Piscine : oui

À PROPOS DU PRIX

  • Charges : 64.00 €
  • Honoraires TTC : 775.38 €
  • Dépôt de garantie : 745.00 €
  • Honoraires TTC pour états des lieux : 179.07 €

LES DIAGNOSTICS ÉNERGÉTIQUES

  • DPE (diagnostic de performance énergétique) :  C (70)
  • GES (émission de gaz à effet de serre) :  C (14)

L'agence

CONFIANCE IMMOBILIER MONPLAISIR LOCATION
108, avenue des frères Lumière
69008 LYON

Contacter

04 72 78 89 87

faq

Être recontacté Étape 1 : Présentez-nous votre bien

(optionnel)

Voici nos agences les plus proches de votre bien Locagestion vous proposera les agences les plus adaptés à votre besoin

C'est presque terminé !
Pour être rappelé, merci de nous indiquer...

Exemple :+33 6 05 04 03 02
Prendre RDV