T3 3 pièces - 55m² Le Pont De Claix (38800)

  • 3 pièces
  • 2 chambres
  • 1 salle de bain

846.00€ par mois charges comprises

N’hésitez pas à partager ! 

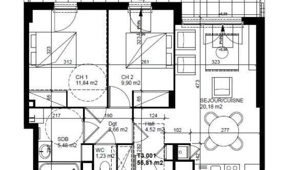
001 COURS D'Ô A SAISIR SUPERBE T3 AVEC TERRASSE A L'INTERIEUR D'UNE RESIDENCE NEUVE DE STANDING A FAIBLE CONSOMMATION ENERGETIQUE. Il est composé d'une belle pièce de vie d'une cuisine US (meubles haut et bas, hotte, plaque de cuisson et four) donnant sur la terrasse, deux chambres en sol parquet avec placard, une salle de bain aménagée avec meuble sous vasque et sèche serviette. Une place de parking en sous-sol. Chauffage individuel gaz. Visiophone. Consommation d'énergie totale entre 575 EUR et 778 EUR par an (prix moyens des énergies 2021-2022-2023). Les informations sur les risques auxquels ce bien est exposé sont disponibles sur le site Géorisques : www. georisques. gouv. fr

Référence : 10647

En général

  • Surface : 55m²
  • 3 pièces
  • 2 chambres
  • 1 salle de bain
  • Meublé
  • Ascenseur : oui
  • Piscine : oui

À PROPOS DU PRIX

  • Charges : 101.00 €
  • Honoraires TTC : 725.53 €
  • Dépôt de garantie : 720.00 €
  • Honoraires TTC pour états des lieux : 167.43 €

LES DIAGNOSTICS ÉNERGÉTIQUES

  • DPE (diagnostic de performance énergétique) :  C (90)
  • GES (émission de gaz à effet de serre) :  C (18)

L'agence

CONFIANCE IMMOBILIER MONPLAISIR LOCATION
108, avenue des frères Lumière
69008 LYON

Contacter

04 72 78 89 87

faq

Être recontacté Étape 1 : Présentez-nous votre bien

(optionnel)

Voici nos agences les plus proches de votre bien Locagestion vous proposera les agences les plus adaptés à votre besoin

C'est presque terminé !
Pour être rappelé, merci de nous indiquer...

Exemple :+33 6 05 04 03 02