T4 4 pièces - 92m² Boulogne Billancourt (92100)

  • 4 pièces
  • 3 chambres
  • 2 salles d'eau

2670.00€ par mois charges comprises

N’hésitez pas à partager ! 

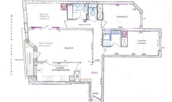
Appartement meublé situé au 4ème étage d'une résidence récente de standing du boulevard Jean Jaurès tout près du métro Marcel Sembat : entrée, séjour sur balcon, 3 chambres avec placards, cuisine entièrement aménagée et équipée (électroménager Miele), salle douche avec wc, wc séparés avec lave mains, 2ème salle de douche, grande cave, parking en sous-sol. Possibilité de choisir les meubles restants. Pour visiter appeler Philippe CHEVALLIER 06 86 60 20 94, Agent commercial immatriculé au R.C.S. de Versailles sous le numéro 799 357 710.. Honoraires de location : 1395 € si bail loi 89, 2670 € HT si bail civil. Les informations sur les risques auxquels ce bien est exposé sont disponibles sur le site Géorisques : www.georisques.gouv.fr

Référence : 3010195

En général

  • Surface : 92m²
  • 4 pièces
  • 3 chambres
  • 2 salles d'eau
  • 1 parking
  • Meublé
  • Etage : 4
  • Ascenseur : oui
  • Cave : oui
  • Gardien : oui
  • Interphone : oui
  • Digicode : oui
  • Cuisine : équipée
  • Chauffage : Type : individuel - Énergie : électricité

À PROPOS DU PRIX

  • Charges : 240.00 €
  • Honoraires TTC : 1380.00 €
  • Dépôt de garantie : 4860.00 €
  • Honoraires TTC pour états des lieux : 276.00 €

LES DIAGNOSTICS ÉNERGÉTIQUES

  • DPE (diagnostic de performance énergétique) :  D (180)
  • GES (émission de gaz à effet de serre) :  C (11)

L'agence

CABINET PERENIUM
33 avenue de l'Opéra
75002 PARIS

Contacter

0155380535

faq

Être recontacté Étape 1 : Présentez-nous votre bien

(optionnel)

Voici nos agences les plus proches de votre bien Locagestion vous proposera les agences les plus adaptés à votre besoin

C'est presque terminé !
Pour être rappelé, merci de nous indiquer...

Exemple :+33 6 05 04 03 02