T4 4 pièces - 76m² Carcassonne (11000)

  • 4 pièces
  • 3 chambres
  • 1 salle de bain

695.00€ par mois charges comprises

N’hésitez pas à partager ! 

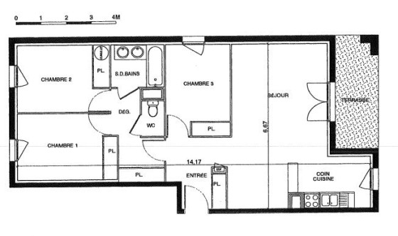
Forom Immobilier vous propose en exclusivité cet appartement T4 d'une surface d'environ 76.02 m² sur le secteur de Carcassonne. Le bien sera libre de toute occupation à partir du 20 avril. Devenez locataires de ce bel appartement qui dispose de trois belles chambres avec placard, d'un grand séjour/ cuisine d'environ 35,58 m², le tout ouvrant sur une charmante terrasse. Le bien dispose également de deux places de parking extérieur. Le loyer est de 695€ charges comprises soit : 640€ de loyer hors charges et 55€ de provision pour charges avec régularisation annuelle (la taxe pour ordures ménagères est en sus). Honoraires à la charge du nouveau locataire : 700€ TTC dont 200€ pour la réalisation de l'état des lieux d'entrée. Montant du dépôt de garantie : 640€ Bien classé : C - diagnostics réalisés le 21/05/2024 - consommation moyenne annuelle : 890€ et 1 240€ (année de référence 2021)

Référence : 4028-FOROM

En général

  • Surface : 76m²
  • 4 pièces
  • 3 chambres
  • 1 salle de bain
  • 2 parkings
  • Meublé
  • Chauffage : Type : individuel - Énergie : électricité

À PROPOS DU PRIX

  • Charges : 55.00 €
  • Honoraires TTC : 700.00 €
  • Dépôt de garantie : 640.00 €
  • Honoraires TTC pour états des lieux : 200.00 €

LES DIAGNOSTICS ÉNERGÉTIQUES

  • DPE (diagnostic de performance énergétique) :  C (178)
  • GES (émission de gaz à effet de serre) :  A (5)

L'agence

FOROM IMMOBILIER
105 route d'Albi
31200 TOULOUSE

Contacter

05 67 76 62 50

faq

Être recontacté Étape 1 : Présentez-nous votre bien

(optionnel)

Voici nos agences les plus proches de votre bien Locagestion vous proposera les agences les plus adaptés à votre besoin

C'est presque terminé !
Pour être rappelé, merci de nous indiquer...

Exemple :+33 6 05 04 03 02
Prendre RDV