T4 4 pièces - 77m² Chatel Saint Germain (57160)

  • 4 pièces
  • 3 chambres
  • 1 salle de bain

712.00€ par mois charges comprises

N’hésitez pas à partager ! 

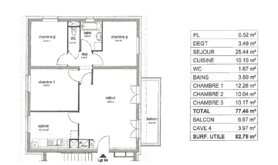
A louer T4 d'une surface de 77 m² sur la commune de Châtel Saint Germain, au 2e étage sans ascenseur. Ce logement se compose d'une cuisine, un séjour, 3 chambres, WC et salle de bain. Un balcon complète ce bien. Chauffage individuel gaz.

Référence : 251210-141250

En général

  • Surface : 77m²
  • 4 pièces
  • 3 chambres
  • 1 salle de bain
  • Meublé
  • Etage : 2
  • Chauffage : Type : individuel - Énergie : gaz

À PROPOS DU PRIX

  • Charges : 0.00 €
  • Honoraires TTC : 0.00 €
  • Dépôt de garantie : 0.00 €
  • Honoraires TTC pour états des lieux : 0.00 €

LES DIAGNOSTICS ÉNERGÉTIQUES

  • DPE (diagnostic de performance énergétique) :  C (103)
  • GES (émission de gaz à effet de serre) :  C (19)

L'agence

VIVEST
15 SENTE A MY
57000 METZ

Contacter

09 77 42 57 57

faq

Être recontacté Étape 1 : Présentez-nous votre bien

(optionnel)

Voici nos agences les plus proches de votre bien Locagestion vous proposera les agences les plus adaptés à votre besoin

C'est presque terminé !
Pour être rappelé, merci de nous indiquer...

Exemple :+33 6 05 04 03 02